Terraced House Haz-Zebbug
€ 850,000
Description
Terraced House for Sale Haz-Zebbug
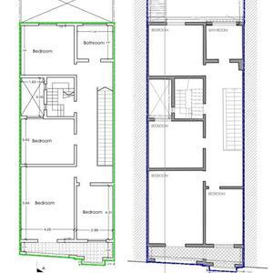
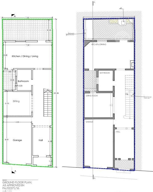
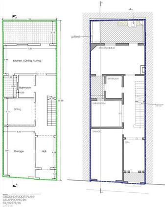
- 166sqm plot
- Entrance Hall
- Formal Sitting Room
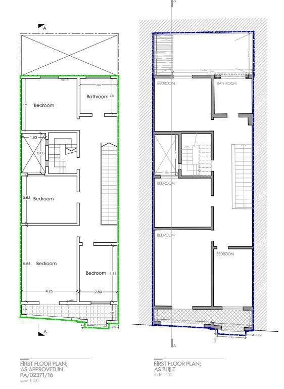
- 2 bathrooms
- Kitchen/Dining/Living
- 1 back yard
- 1 internal yard
- 1 car garage + storage
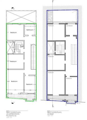
- 4 bedrooms
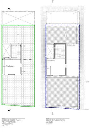
- Laundry room + Indoor Hanging Area
- 2 roof terraces
- Furnished and more
- Freehold
Asking EUR 850,000
- 166sqm plot
- Entrance Hall
- Formal Sitting Room
- 2 bathrooms
- Kitchen/Dining/Living
- 1 back yard
- 1 internal yard
- 1 car garage + storage
- 4 bedrooms
- Laundry room + Indoor Hanging Area
- 2 roof terraces
- Furnished and more
- Freehold
Asking EUR 850,000
Other Details
Terraced HouseZebbug (Malta)Furnished
4YesNo
Item Details
9988060
121
Property For Sale
12/11/2025
Featured Listings
House of Character
For Sale
House of character3Rabat (Malta)
FGURA Maisonette 3 bedroom
For Sale
Maisonette3Fgura
Zurrieq New on the Market - Direct from Owner
For Sale
Apartment / Flat3Zurrieq
NO AGENTS - DIRECT FROM OWNER - FULLY FURNISHED FIRST FLOOR APARTMENT IN MOSTA FOR SALE
For Sale
Apartment / Flat3Mosta
