Zenjtun Terraced house
€ 490,000
Description
Zejtun Terraced house
Newly build 3 Bedroom Terraced House located in a UCA area of this sought after Location Zejtun (TAX exempt).
The house will be sold in shell form and it will be built by the end of December 2026.
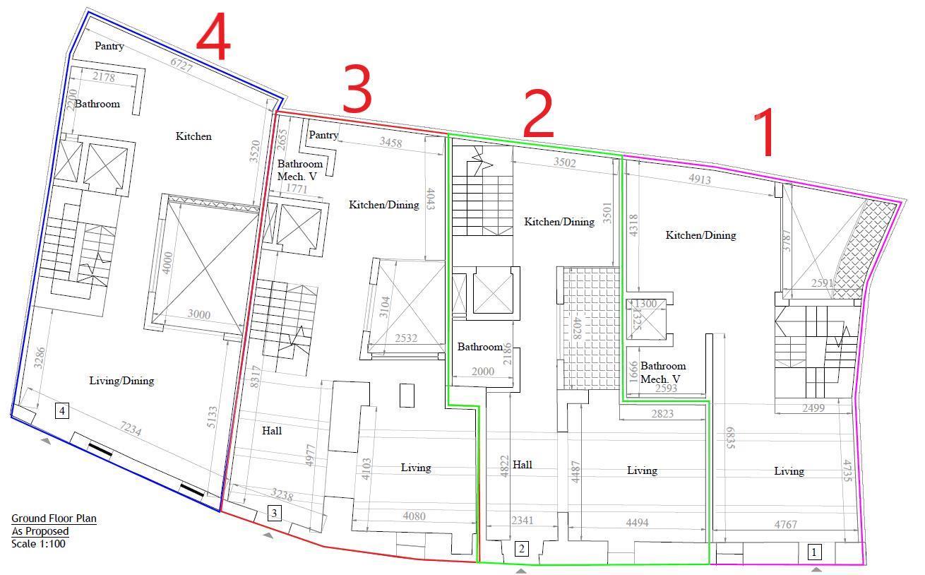
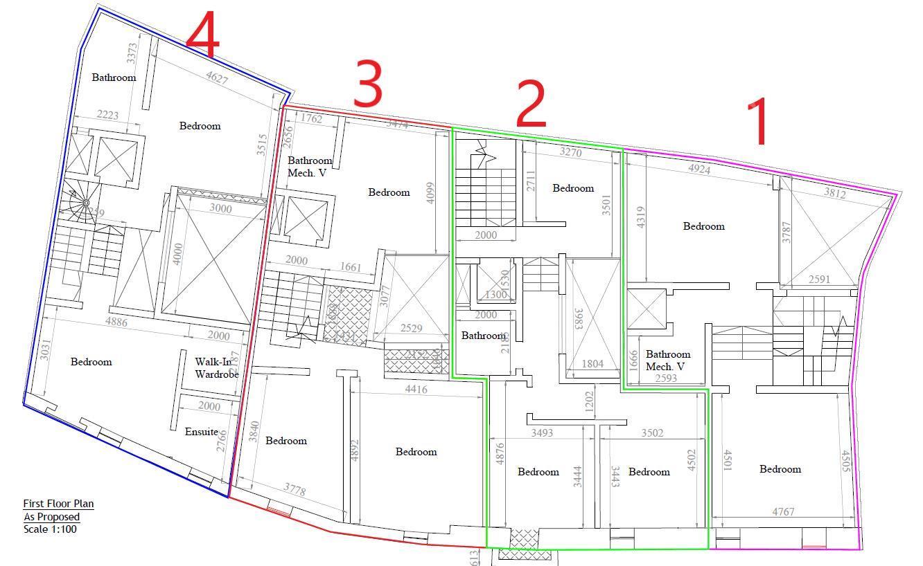
Consisting of a large welcoming hall, living room sep kitchen/ dining with a pantry, bathroom and an 8sqm internal yard on ground floor level, a large study room with a bathroom on the Intermediate level, 3 double bedrooms main with an ensuite on 1st floor level and
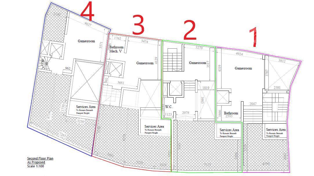
a Gamesroom / Laundry room with a bathroom and large roof terrace very ideal to entertaine.
Complimenting this Property is a good sized basement ideal as a GYM / Gamesroom / Men cave etc with a shower room and a lift shaft serving all floors.
On plan marked 3.
€490,000 Freehold
Viewing is a must.
Newly build 3 Bedroom Terraced House located in a UCA area of this sought after Location Zejtun (TAX exempt).
The house will be sold in shell form and it will be built by the end of December 2026.
Consisting of a large welcoming hall, living room sep kitchen/ dining with a pantry, bathroom and an 8sqm internal yard on ground floor level, a large study room with a bathroom on the Intermediate level, 3 double bedrooms main with an ensuite on 1st floor level and
a Gamesroom / Laundry room with a bathroom and large roof terrace very ideal to entertaine.
Complimenting this Property is a good sized basement ideal as a GYM / Gamesroom / Men cave etc with a shower room and a lift shaft serving all floors.
On plan marked 3.
€490,000 Freehold
Viewing is a must.
Other Details
Terraced HouseZejtunShell
3YesNo
Item Details
10009868
157
Property For Sale
13/01/2026
Featured Listings
?? DESIGNER-FINISHED 2-BEDROOM APARTMENT • FREEHOLD • QUIET AREA ?? DIRECT FROM OWNER – €345,000 • H...
For Sale
Apartment / Flat2Luqa
Ghaxaq 3 bedroom, 2 Bathroom Apartment 150sqm
For Sale
Apartment / Flat3Ghaxaq
Hamrun/Pieta - Maisonette 3 Bedrooms / 3 Bathrooms - FULLY FINISHED
For Sale
Maisonette3Pieta'
Hamrun/Pieta - 1Bedroom + Study Apartment - OWNER
For Sale
Apartment / Flat2Pieta'
