Zejtun Terraced house
€ 545,000
Description
Zejtun Terraced houses
Newly build 3 Bedroom Terraced House located in a UCA area of this sought after Location Zejtun (TAX exempt).
The house will be sold in shell form and it will be built by the end of December 2026.
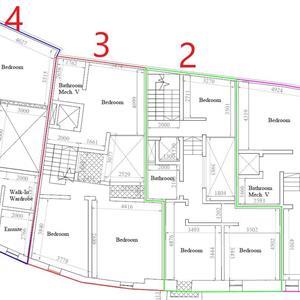
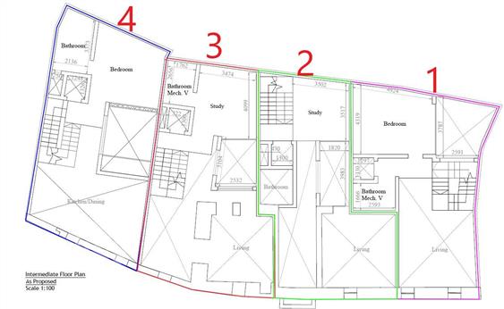
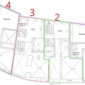
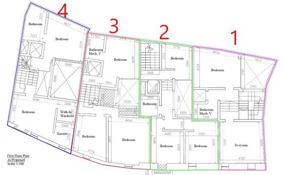
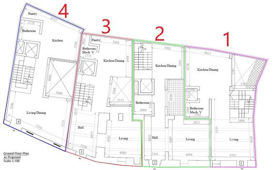
Consisting of a large welcoming hall, living room sep kitchen/ dining , bathroom and an 11sqm internal yard on ground floor level, a bedroom with an ensuite on the Intermediate level, 2 double bedrooms main with an ensuite on 1st floor level and
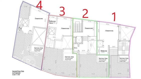
a Gamesroom / Laundry room with a bathroom and large roof terrace very ideal to entertaine.
Complimenting this Property is a 2 /3 Cars basement Garage with workshop / Gamesroom at the back and a lift shaft serving all floors.
On plan marked .
€545,000 Freehold
Viewing is a must.
Contact 99496088
Newly build 3 Bedroom Terraced House located in a UCA area of this sought after Location Zejtun (TAX exempt).
The house will be sold in shell form and it will be built by the end of December 2026.
Consisting of a large welcoming hall, living room sep kitchen/ dining , bathroom and an 11sqm internal yard on ground floor level, a bedroom with an ensuite on the Intermediate level, 2 double bedrooms main with an ensuite on 1st floor level and
a Gamesroom / Laundry room with a bathroom and large roof terrace very ideal to entertaine.
Complimenting this Property is a 2 /3 Cars basement Garage with workshop / Gamesroom at the back and a lift shaft serving all floors.
On plan marked .
€545,000 Freehold
Viewing is a must.
Contact 99496088
Other Details
Terraced HouseZejtunShell
3YesNo
Item Details
10009873
402
Property For Sale
13/01/2026
Featured Listings
DINGLI – NEW ON THE MARKET
For Sale
Apartment / Flat2Dingli
DEVELOPERS BUYING ALL PROPERTY TYPES | OWN A PROPERTY ? WE PAY MORE.
For Sale
OtherZejtun
WANTED HOUSES PLOT SITES FOR DEVELOPMENT CASH IN HAND
For Sale
Terraced HouseZejtun
From Owner - Attard Misrah kola furnished 3 bedroom apartment with part of Roof and optional Garage
For Sale
Apartment / Flat3Attard
