DIRECT FROM OWNER - 2 Bedroom Apt - CARINI STREET STA VENERA
€ 285,000
Description
Being Sold at PRE DEVELOPENT Prices - Demolition of Site Ready and contracts scheduled for March 2027.
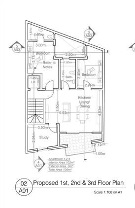
2 Bedroom, 2 Bathroom, plus Study in a very small block
Internal Area 102 Sqm
External Area 3 Sqm
FREEHOLD
Optional Garage Available
Being offered in Shell + Finishing Package
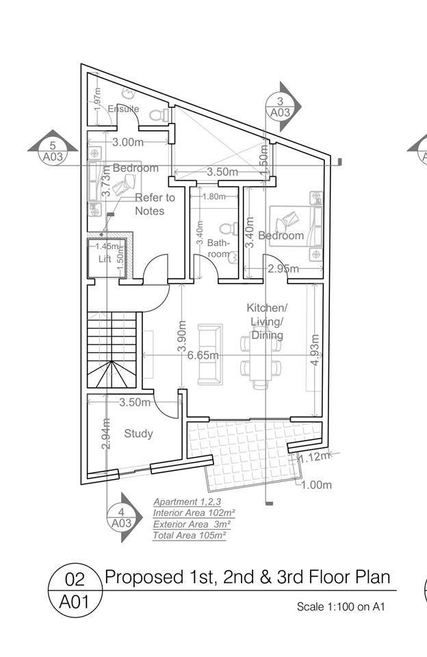
2 Bedroom, 2 Bathroom, plus Study in a very small block
Internal Area 102 Sqm
External Area 3 Sqm
FREEHOLD
Optional Garage Available
Being offered in Shell + Finishing Package
Other Details
Apartment / FlatSanta VeneraFinished
2NoNo
Item Details
10023686
340
Property For Sale
03/03/2026
Featured Listings
BALZAN --- VERY LARGE 3 BEDROOM APARTMENT --- DIRECT FROM OWNER
For Sale
Apartment / Flat3Balzan
HAMRUN 2/3 BEDROOM TOWNHOUSE
For Sale
Terraced House3Hamrun
For sale 8000 m2 land with Seaview in xlendi gozo
For Sale
Land (ODZ)Xlendi (Gozo)
For Sale – 5Bdr Spacious Home with Large Garden in Xlendi
For Sale
Terraced House5Xlendi (Gozo)
