Zejtun penthouse for sale including bathrooms and doors
€ 347,000
Description
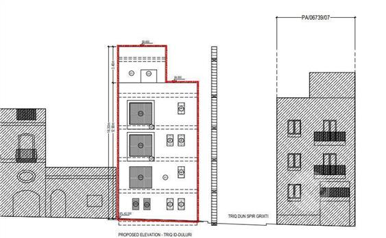
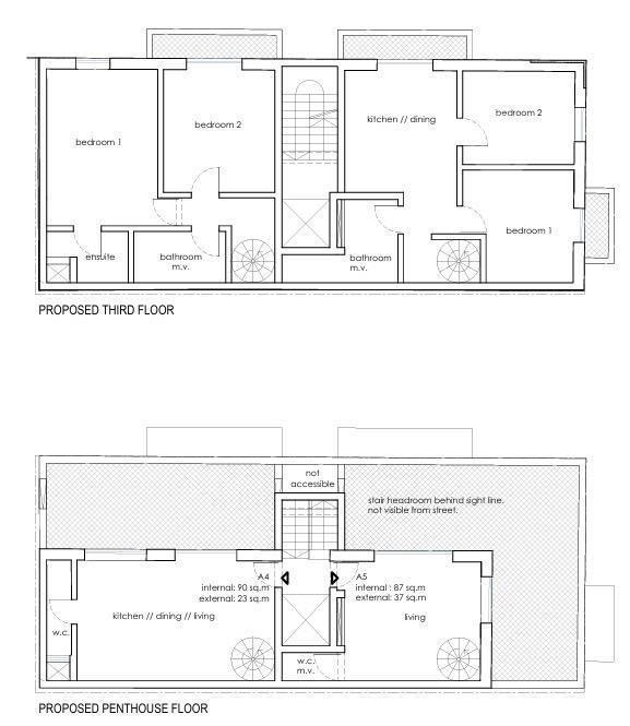
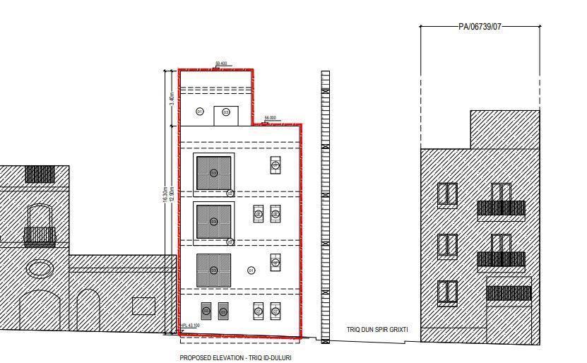
ZEJTUN two bedroom penthouse FOR SALE
Being Sold including bathrooms and Doors
347k For Sale
Duplex penthouse in zabbar
Large open plan
Two double bedrooms
Theee
Bathrooms
Two terraces
Including bathrooms and doors
Currently being built
Sensara 1 percent
Call or whatsapp on 0035679394933
Being Sold including bathrooms and Doors
347k For Sale
Duplex penthouse in zabbar
Large open plan
Two double bedrooms
Theee
Bathrooms
Two terraces
Including bathrooms and doors
Currently being built
Sensara 1 percent
Call or whatsapp on 0035679394933
Other Details
PenthouseZejtunFinished
2NoNo
Item Details
10034146
16
Property For Sale
08/04/2026
Featured Listings
Maisonette - 3 Bedroom / 3 Bathrooms - Hamrun/Pieta
For Sale
Maisonette3Pieta'
!!WANTED!! PLOTS / SITES & HOUSES TO DEVELOP. CASH IN HAND!!
For Sale
Terraced House3Zurrieq
St Julian's - Direct From Owner - 220sqm Semi-Detached Corner Ground-Floor Maisonette
For Sale
Maisonette3San Giljan
WANTED HOUSES PLOT SITES FOR DEVELOPMENT CASH IN HAND
For Sale
Terraced HouseZejtun
