QORMI - PENTHOUSE
€ 480,000
Description
QORMI - PENTHOUSE
-Quiet residential
-Finished (excluding bathrooms & doors)
- Airspace
This Property Consists -
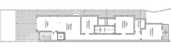
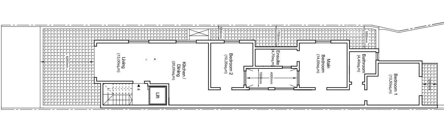
-Open Plan Kitchen/Living &Dinning area .
-3 Double Bedrooms – all with terrace Main with Unsuite.
-Main Bathroom .
-Side ,Front& Back Terrance.
- Airspace.
- Free Hold 480k.
- Optinal 2 Car Garage .
For Viewing call on 79888936 .( Whats App Avilable ).
Visit and Like our Face Book Page , Living Spaces Sensara 1%.
-Quiet residential
-Finished (excluding bathrooms & doors)
- Airspace
This Property Consists -
-Open Plan Kitchen/Living &Dinning area .
-3 Double Bedrooms – all with terrace Main with Unsuite.
-Main Bathroom .
-Side ,Front& Back Terrance.
- Airspace.
- Free Hold 480k.
- Optinal 2 Car Garage .
For Viewing call on 79888936 .( Whats App Avilable ).
Visit and Like our Face Book Page , Living Spaces Sensara 1%.
Other Details
PenthouseQormiFinished
3NoNo
Item Details
9968506
232
Property For Sale
19/09/2025
Featured Listings
NO AGENTS - DIRECT FROM OWNER - FULLY FURNISHED FIRST FLOOR APARTMENT IN MOSTA FOR SALE
For Sale
Apartment / Flat3Mosta
WANTED HOUSES PLOT SITES FOR DEVELOPMENT CASH IN HAND
For Sale
Terraced HouseZejtun
Sea View Penthouse Marsaxlokk
For Sale
Penthouse2Marsaxlokk
Ta' Farsina, Qormi - Spacious 2 Bedroom and 2 Bathroom Apartments
For Sale
Apartment / Flat2Qormi
