Fgura – Squarish 3 Double Bedroom Apartment
€ 282,000
Description
Fgura – Squarish 3 Double Bedroom Apartment
Price: €282,000 • Code: V022645 • Size: 136 sqm
Located in a central part of Fgura, this first-floor apartment is already built and has been redesigned to create a more spacious and practical layout. The property is being sold finished, excluding bathrooms and internal doors, allowing buyers to personalize the final touches.
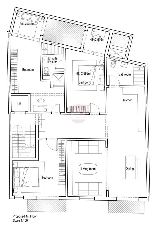
Layout:
Open-plan kitchen, living, and dining area with front balcony
Main bathroom
Three double bedrooms – one with balcony, main with ensuite and internal yard
Freehold
This apartment is an excellent choice for those looking for a comfortable family home or a solid rental investment close to all amenities.
📞 Contact: Raisa Zammit – Sensara Malta | +356 77302130
Price: €282,000 • Code: V022645 • Size: 136 sqm
Located in a central part of Fgura, this first-floor apartment is already built and has been redesigned to create a more spacious and practical layout. The property is being sold finished, excluding bathrooms and internal doors, allowing buyers to personalize the final touches.
Layout:
Open-plan kitchen, living, and dining area with front balcony
Main bathroom
Three double bedrooms – one with balcony, main with ensuite and internal yard
Freehold
This apartment is an excellent choice for those looking for a comfortable family home or a solid rental investment close to all amenities.
📞 Contact: Raisa Zammit – Sensara Malta | +356 77302130
Item Details
9971350
61
Home & Furniture
28/09/2025
New