Huge Garage Zejtun
€ 360,000
Description
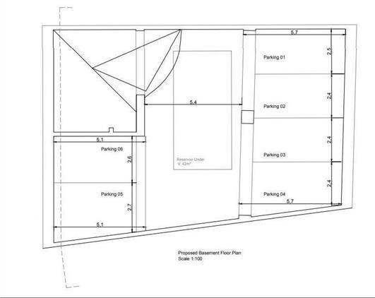
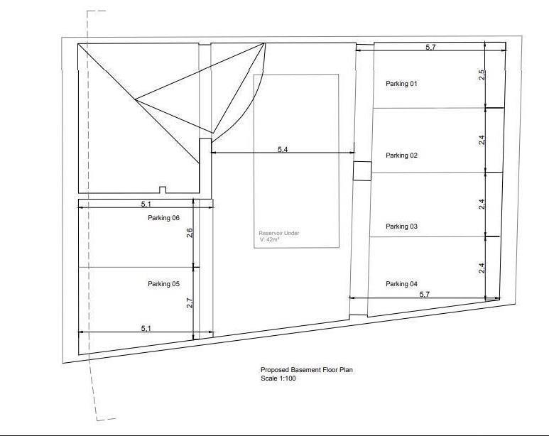
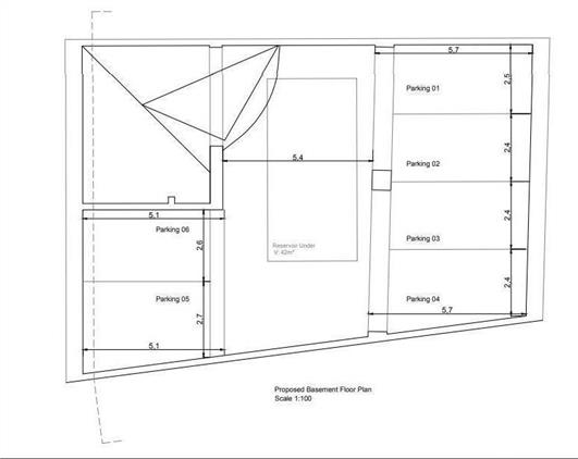
🏡 żejtun | Massive 200 sqm Basement Garage | Own the Whole Block’s Garage Level
📐 Total Area: Circa 200 sqm (12.3m x 17.4m)
💶 Price: €360,000 | Freehold
📲 Call/WhatsApp 7930 1777
💥 Do you have a lot of cars and want to keep them all in one place? This is a rare opportunity to acquire the entire basement garage level under a whole block – ideal for car collectors, storage, or rental income!
🚗 Fits 6 Garages or Parking Spaces (and more cars with ramp & common area space included)
🏗️ Finished as is – ready to use
📦 Perfect for Personal Use, Warehouse, or Rental Purposes
🏢 Ramp & common area is property of the owner
📍 Central Żejtun Location Montebello/Paulson Area
📍 Rare opportunity to centralise all your vehicles or run a profitable rental garage business
📍 Freehold – full ownership of the entire garage level with a capacity of 14 cars
📐 Total Area: Circa 200 sqm (12.3m x 17.4m)
💶 Price: €360,000 | Freehold
📲 Call/WhatsApp 7930 1777
💥 Do you have a lot of cars and want to keep them all in one place? This is a rare opportunity to acquire the entire basement garage level under a whole block – ideal for car collectors, storage, or rental income!
🚗 Fits 6 Garages or Parking Spaces (and more cars with ramp & common area space included)
🏗️ Finished as is – ready to use
📦 Perfect for Personal Use, Warehouse, or Rental Purposes
🏢 Ramp & common area is property of the owner
📍 Central Żejtun Location Montebello/Paulson Area
📍 Rare opportunity to centralise all your vehicles or run a profitable rental garage business
📍 Freehold – full ownership of the entire garage level with a capacity of 14 cars
Other Details
GarageZejtunFinished
Not ApplicableNot ApplicableNo
Item Details
9978595
372
Property For Sale
20/10/2025
Featured Listings
NO AGENTS - DIRECT FROM OWNER - FULLY FURNISHED FIRST FLOOR APARTMENT IN MOSTA FOR SALE
For Sale
Apartment / Flat3Mosta
Birzebbugia New Development Sea Views
For Sale
Apartment / Flat2Birzebbugia
House of Character
For Sale
House of character3Rabat (Malta)
#SantaVenera | NEW ON THE MARKET | Semi-Furnished 3-Bedroom Penthouse with Terraces & Optional Garag...
For Sale
Penthouse3Santa Venera