Zabbar 1 Bedroom Apartment
€ 220,000
Description
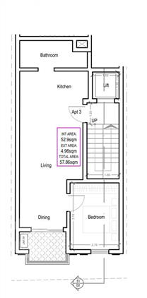
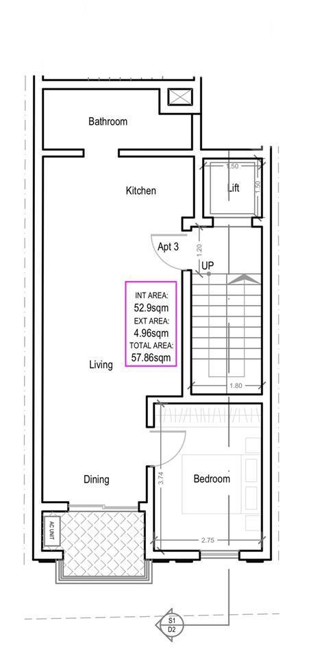
Zabbar - Apartment - On Plan - 58sqm - 3rd floor served with lift - Open Plan - Main Bedroom - Main bathroom - Front terrace - Finished excl baths & doors - Freehold - Ready by End of 2026 - 220k - STRICTLY NO AGENTS
Other Details
Apartment / FlatZabbarSemi-Finished
1NoNo
Item Details
9989677
78
Property For Sale
18/11/2025
Featured Listings
Apartment in Gzira - direct from owner
For Sale
Apartment / Flat2Gzira
Apartment 2nd flour
For Sale
Apartment / Flat2Mgarr
House of Character in Attard
For Sale
House of character3Attard
House of Character
For Sale
House of character3Rabat (Malta)
