QORMI - PENTHOUSE -Quiet residential -Finished (excluding bathrooms & doors)
€ 480,000
Description
QORMI - PENTHOUSE
-Quiet residential
-Finished (excluding bathrooms & doors)
- Airspace
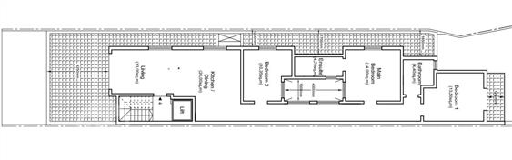
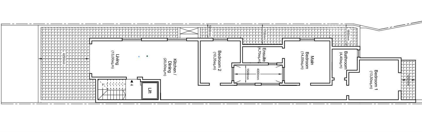
This Property Consists -
-Open Plan Kitchen/Living &Dinning area .
-3 Double Bedrooms – all with terrace Main with Unsuite.
-Main Bathroom .
-Side ,Front& Back Terrance.
- Airspace.
- Free Hold 480k.
- Optinal 1 Car Garage .
For Viewing call on 79888936 .( Whats App Avilable ).
Visit and Like our Face Book Page , Living Spaces Sensara 1%.
-Quiet residential
-Finished (excluding bathrooms & doors)
- Airspace
This Property Consists -
-Open Plan Kitchen/Living &Dinning area .
-3 Double Bedrooms – all with terrace Main with Unsuite.
-Main Bathroom .
-Side ,Front& Back Terrance.
- Airspace.
- Free Hold 480k.
- Optinal 1 Car Garage .
For Viewing call on 79888936 .( Whats App Avilable ).
Visit and Like our Face Book Page , Living Spaces Sensara 1%.
Other Details
PenthouseQormiFinished
2NoNo
Item Details
9994978
337
Property For Sale
06/12/2025
Featured Listings
HAMRUN 2/3 BEDROOM TOWNHOUSE
For Sale
Terraced House3Hamrun
For Sale - Apartments & Garages for Sale – Xewkija Gozo
For Sale
Apartment / Flat3Xewkija (Gozo)
For Sale 2 bd Semi detached maisonette with terrace and own entrance in Xlendi Bay
For Sale
Maisonette2Xlendi (Gozo)
Direct from owner - Qawra -Fully Furnished Bright Semi-Detached 3-Bedroom Apartment
For Sale
Apartment / Flat3Qawra
