MTARFA - Furnished 1 st Floor Apartment Measuring approx 140sqm
€ 440,000
Description
MTARFA - Furnished 1 st Floor Apartment
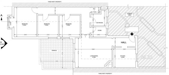
Measuring approx 140sqm total. 25sqm south-facing terrace, overlooking the Mtarfa woodland.
Bright & Airy.
This property Consist , a Large Open plan , Kitchen , Living & Dinning area leading to the Terrance , 3 bedrooms , Main with Balcony , Main Bathroom , Spare Toilet , and a Washroom .
2 garaged parking spaces rented near by.
Free HOLD €440,000. Neg
Plans attached.
For Viewing Call on 79888936 ( WhatsApp avilable )
Visit & Like Our Face Book Page ; Living Spaces Sensara 1%
Measuring approx 140sqm total. 25sqm south-facing terrace, overlooking the Mtarfa woodland.
Bright & Airy.
This property Consist , a Large Open plan , Kitchen , Living & Dinning area leading to the Terrance , 3 bedrooms , Main with Balcony , Main Bathroom , Spare Toilet , and a Washroom .
2 garaged parking spaces rented near by.
Free HOLD €440,000. Neg
Plans attached.
For Viewing Call on 79888936 ( WhatsApp avilable )
Visit & Like Our Face Book Page ; Living Spaces Sensara 1%
Other Details
Apartment / FlatRabat (Malta)Finished
3NoNo
Item Details
10003064
71
Property For Sale
07/01/2026
Featured Listings
NO AGENTS - DIRECT FROM OWNER - FULLY FURNISHED FIRST FLOOR APARTMENT IN MOSTA FOR SALE
For Sale
Apartment / Flat3Mosta
Brand New Block - Finished 2-Bedroom Apartments in Pietà
For Sale
Apartment / Flat2Pieta'
NO AGENTS - DIRECT FROM OWNER
For Sale
Maisonette6Bahar ic-Caghaq
WANTED HOUSES PLOT SITES FOR DEVELOPMENT CASH IN HAND
For Sale
Terraced HouseZejtun
