BURMARRAD - 4 th Floor Apartment -Over 290 sqm , - Semi Furnished ,
€ 735,000
Description
BURMARRAD - 4 th Floor Apartment
-Over 290 sqm ,
- Semi Furnished ,
This Property Consits,
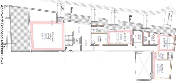
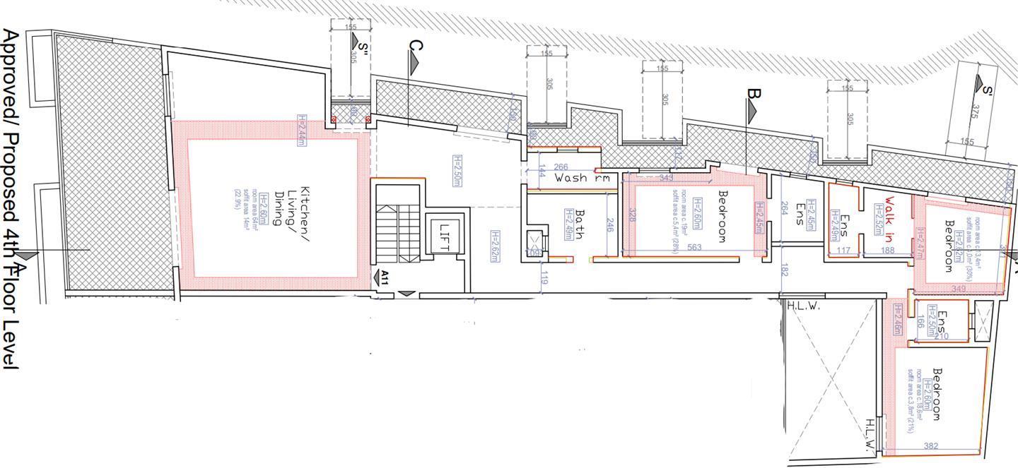
Huge Open plan Kitchen, /Living,& Dinning area (over 75 sqm ) leading to a good size front terrance with views ,
3 double bedrooms ,all with unsiute ,
4 Balconys ,
Washroom ,
Study area ,
& the Main Bathroom.
Free hold 735k
Optinal 1 car Garage ,
For Viewing Call on 79888936 ( WhatsApp) avilable .
Visit and Like our Face Book Page , Living Spaces Sensara 1% .
-Over 290 sqm ,
- Semi Furnished ,
This Property Consits,
Huge Open plan Kitchen, /Living,& Dinning area (over 75 sqm ) leading to a good size front terrance with views ,
3 double bedrooms ,all with unsiute ,
4 Balconys ,
Washroom ,
Study area ,
& the Main Bathroom.
Free hold 735k
Optinal 1 car Garage ,
For Viewing Call on 79888936 ( WhatsApp) avilable .
Visit and Like our Face Book Page , Living Spaces Sensara 1% .
Other Details
Apartment / FlatRabat (Malta)Finished
3NoNo
Item Details
10009570
211
Property For Sale
12/01/2026
Featured Listings
HAMRUN 2/3 BEDROOM TOWNHOUSE
For Sale
Terraced House3Hamrun
For Sale - Plot with Approved Permit in Xewkija, Gozo
For Sale
PlotXewkija (Gozo)
For Sale 3bdr Terrace house with pool and large outdoors in Qala Gozo
For Sale
House of character3Qala (Gozo)
For Sale – 2 Bdr Penthouse with study room on plan (Building Started) in Xewkija, Gozo
For Sale
Penthouse2Xewkija (Gozo)
