Zejtun Terraced house
€ 490,000
Description
Zejtun Terraced house
Newly build 3 Bedroom Terraced House located in a UCA area of this sought after Location Zejtun (TAX exempt).
The house will be sold in shell form and it will be built by the end of December 2026.
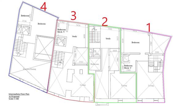
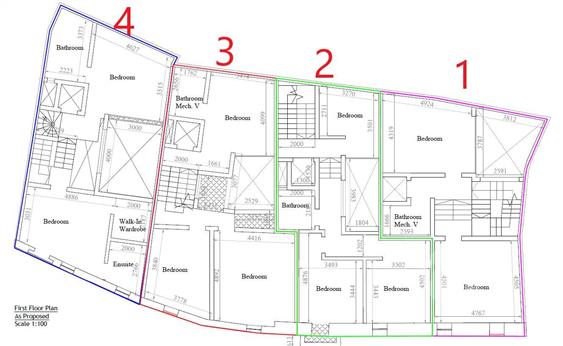
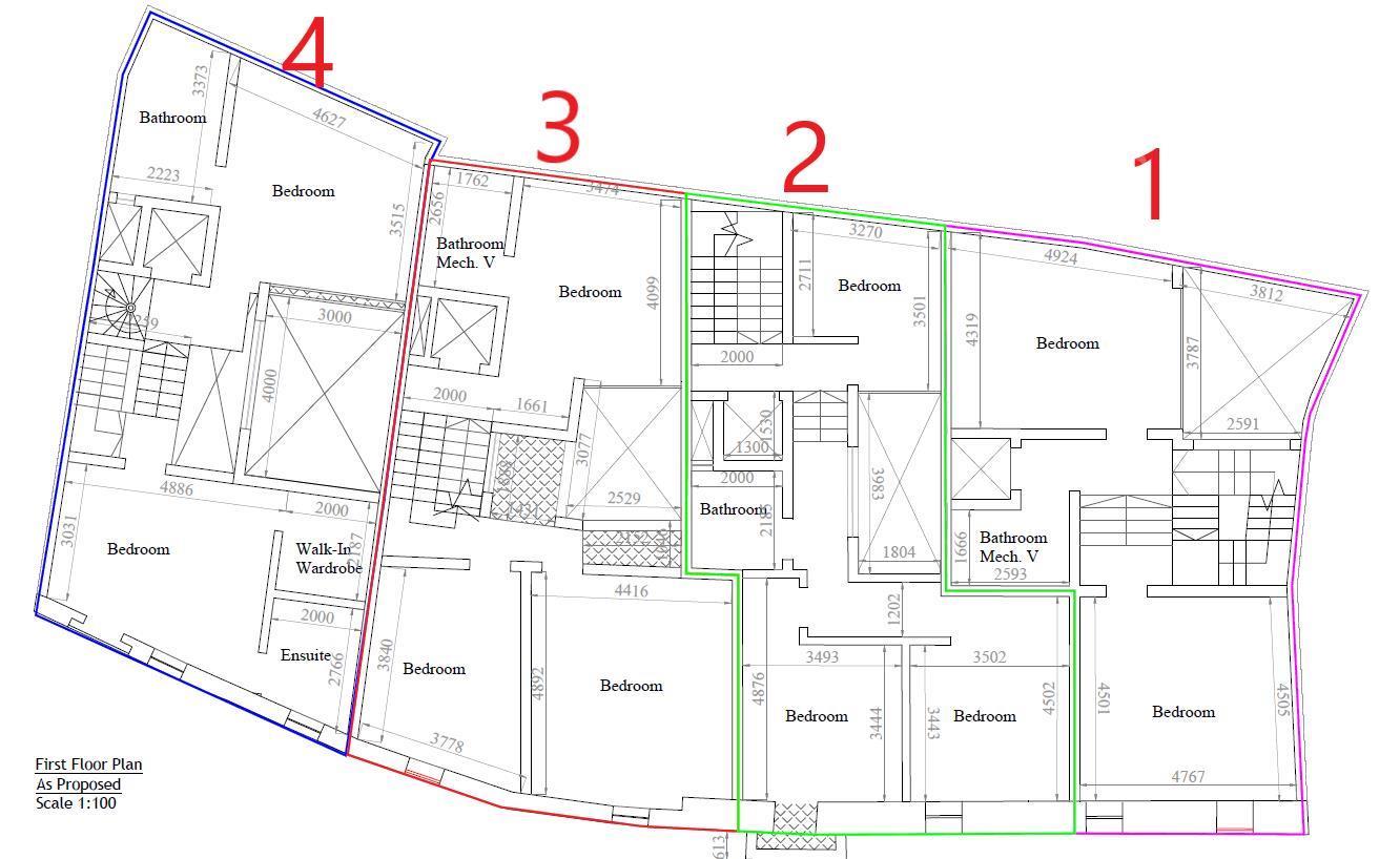
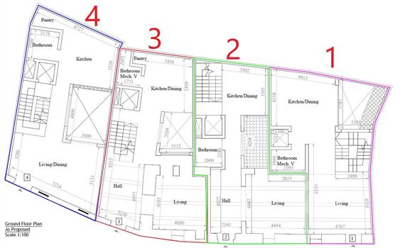
Consisting of a large welcoming hall, living room sep kitchen/ dining with a pantry, bathroom and an 8sqm internal yard on ground floor level, a large study room with a bathroom on the Intermediate level, 3 double bedrooms main with an ensuite on 1st floor level and
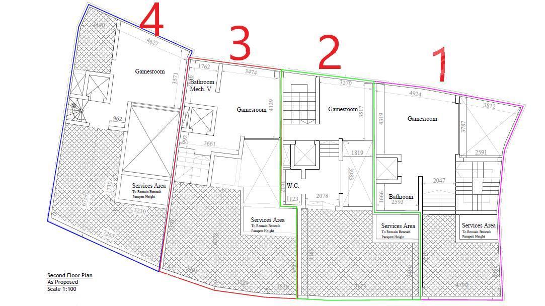
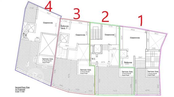
a Gamesroom / Laundry room with a bathroom and large roof terrace very ideal to entertaine.
Complimenting this Property is a good sized basement ideal as a GYM / Gamesroom / Men cave etc with a shower room and a lift shaft serving all floors.
On plan marked 3.
€490,000 Freehold
Viewing is a must.
Contact 99496088
Newly build 3 Bedroom Terraced House located in a UCA area of this sought after Location Zejtun (TAX exempt).
The house will be sold in shell form and it will be built by the end of December 2026.
Consisting of a large welcoming hall, living room sep kitchen/ dining with a pantry, bathroom and an 8sqm internal yard on ground floor level, a large study room with a bathroom on the Intermediate level, 3 double bedrooms main with an ensuite on 1st floor level and
a Gamesroom / Laundry room with a bathroom and large roof terrace very ideal to entertaine.
Complimenting this Property is a good sized basement ideal as a GYM / Gamesroom / Men cave etc with a shower room and a lift shaft serving all floors.
On plan marked 3.
€490,000 Freehold
Viewing is a must.
Contact 99496088
Other Details
Terraced HouseZejtunShell
3YesNo
Item Details
10009872
252
Property For Sale
13/01/2026
Featured Listings
St Julian's - Direct From Owner - Semi-Detached Corner Ground-Floor Maisonette
For Sale
Maisonette3San Giljan
For Sale - 3Bdr Terrace House with Back Yard and Garage – Gharb, Gozo
For Sale
Terraced House3Gharb (Gozo)
For Sale - 4Bdr House with Pool in San Lawrenz, Gozo
For Sale
House of character4San Lawrenz (Gozo)
For Sale 3 bdr furnsihed Apartment with Terrace in Sannat Gozo
For Sale
Apartment / Flat3Sannat
