Apartment in Naxxar, San Pawl tat-Targa (fully furnished and ready to move into)
€ 450,000
Description
🆕 Apartment in Naxxar, San Pawl tat-Targa (fully furnished and ready to move into)
No agents, please!
💶 €450,000
🏠 Furnished home, ideal for families or investment
✅ A rare find, well-lit, with a square layout:
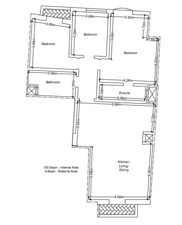
3 bedrooms
2 bathrooms; 1 with bath, 1 with shower
Kitchen & open-plan living area
Balconies and windows overlooking 2 quiet streets
103 square meters internal area
25 square meters of roof with stunning views
📍Sought-after location in a quiet neighbourhood
Other features: 2 small balconies, insulation, and fully air-conditioned.
Sold as freehold
Photos are not AI
No agents, please!
💶 €450,000
🏠 Furnished home, ideal for families or investment
✅ A rare find, well-lit, with a square layout:
3 bedrooms
2 bathrooms; 1 with bath, 1 with shower
Kitchen & open-plan living area
Balconies and windows overlooking 2 quiet streets
103 square meters internal area
25 square meters of roof with stunning views
📍Sought-after location in a quiet neighbourhood
Other features: 2 small balconies, insulation, and fully air-conditioned.
Sold as freehold
Photos are not AI
Other Details
Apartment / FlatNaxxarFurnished
3Not ApplicableNo
Item Details
10028149
48
Property For Sale
17/03/2026
Featured Listings
DEVELOPERS BUYING ALL PROPERTY TYPES | OWN A PROPERTY ? WE PAY MORE.
For Sale
OtherZejtun
!!WANTED!! PLOTS / SITES & HOUSES TO DEVELOP. CASH IN HAND!!
For Sale
Terraced House3Zurrieq
WANTED HOUSES PLOT SITES FOR DEVELOPMENT CASH IN HAND
For Sale
Terraced HouseZejtun