3 Bedroom Apartment
€ 380,000
Description
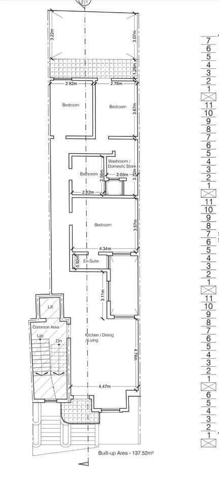
Mqabba spacious 3 bedroom, 2 bathroom apartment served with lift, has 2 balconies, high windows and lots of natural light also featuring a Laundry room! Two modern ACs
🚗 Garage available (Not included in price)
Ready to live in.
Direct from owner
🚗 Garage available (Not included in price)
Ready to live in.
Direct from owner
Other Details
Apartment / FlatMqabbaFurnished
3NoNo
Item Details
10037853
79
Property For Sale
22/04/2026
Featured Listings
Sliema Seafront 2 bedroom Apartment
For Sale
Apartment / Flat2Sliema
DEVELOPERS BUYING ALL PROPERTY TYPES | OWN A PROPERTY ? WE PAY MORE.
For Sale
OtherZejtun
Marsaxlokk Terraced house
For Sale
Terraced House3Sliema
4 Car Garage
For Sale
GarageSwieqi
