Offices for Rent - Burmarrad
€ 1,575 per month
Description
DIRECT FROM OWNER
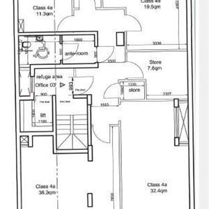
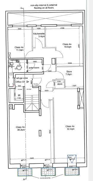
🟡Entire floor for rent - 150sqm
🟡Fully Air Conditioned
🟡Includes use of waiting room on ground floor
🟡Unobstructed views
🟡New building
🟡Bus stop opposite the building
🟡Easy parking
❗️❗️Price - €1575 + VAT monthly ❗️❗️
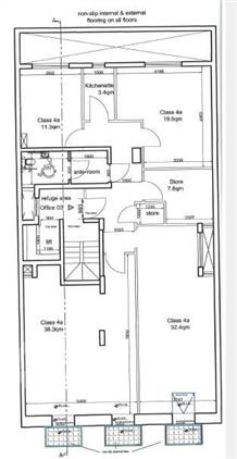
🟡Entire floor for rent - 150sqm
🟡Fully Air Conditioned
🟡Includes use of waiting room on ground floor
🟡Unobstructed views
🟡New building
🟡Bus stop opposite the building
🟡Easy parking
❗️❗️Price - €1575 + VAT monthly ❗️❗️
Other Details
OfficesBurmarradFinished
Not ApplicableNot ApplicableNo
Item Details
9974454
21
Long Lets
08/10/2025
Featured Listings
Garage for Rent - Belmonte Heights Apartments - SLIEMA
Long Lets
GarageSliema
Balzan 3 double bedrooms
Long Lets
Apartment / Flat3Balzan
Modern 2-Bedroom, 2-Bathroom Apartment in Fort Cambridge
Long Lets
Apartment / Flat2Sliema
Semi-basement zebbug garage
Long Lets
GarageZebbug (Malta)