Rabat - New Maisonette ( Faceing ODZ ) 318 sqm -Under Construction
€ 556,000
Description
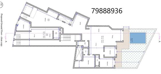
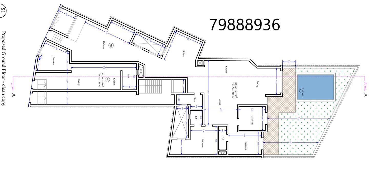
Rabat - New Maisonette ( Faceing ODZ ) 318 sqm
-Under Construction
This Property Consist ;
a large Living area , Kitchen/Dining,Leading to the Pool Area ,3 Double Bedrooms (main with en-suite), & the Main Bathroom
Will be sold finished excluding bathrooms and internal doors.
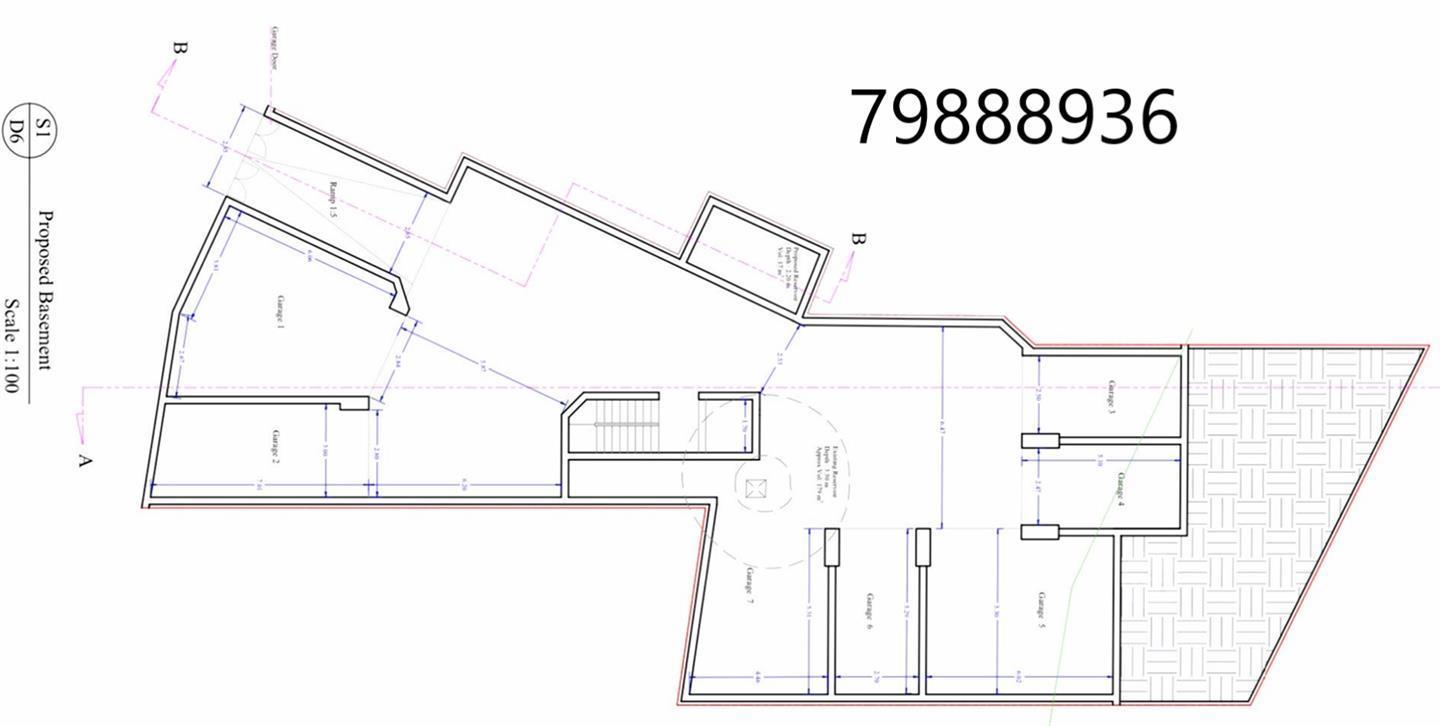
Optional garages available.
Under Construction.
Freehold 556k
ALSO AVILABLE
3 Bedrooms Apartments ,
3 Bedrooms Penthouses ,
For Viewing Call on 79888936 ( WhatsApp avilable )
Visit & Like Our Face Book Page Kevin Sensar .
-Under Construction
This Property Consist ;
a large Living area , Kitchen/Dining,Leading to the Pool Area ,3 Double Bedrooms (main with en-suite), & the Main Bathroom
Will be sold finished excluding bathrooms and internal doors.
Optional garages available.
Under Construction.
Freehold 556k
ALSO AVILABLE
3 Bedrooms Apartments ,
3 Bedrooms Penthouses ,
For Viewing Call on 79888936 ( WhatsApp avilable )
Visit & Like Our Face Book Page Kevin Sensar .
Other Details
MaisonetteRabat (Malta)Finished
3NoNo
Item Details
9983748
200
Property For Sale
01/11/2025
Featured Listings
ZURRIEQ 3 BEDROOM APARTMENT FULLY FURNISHED READY TO MOVE IN.
For Sale
Apartment / Flat3Zurrieq
NO AGENTS - DIRECT FROM OWNER - FULLY FURNISHED FIRST FLOOR APARTMENT IN MOSTA FOR SALE
For Sale
Apartment / Flat3Mosta
Elevated Street level 3 car Garage, Qawra, 45feet, 7inches.
For Sale
Garage1Qawra
Zejtun - No Stairs!! - Furnished, 3 Bedroom Maisonette
For Sale
Maisonette3Zejtun
