Rabat - Unconverted Town House ( Uca Area)
€ 375,000
Description
Rabat - Unconverted Town House ( Uca Area)
Close to town centre & all ameniti
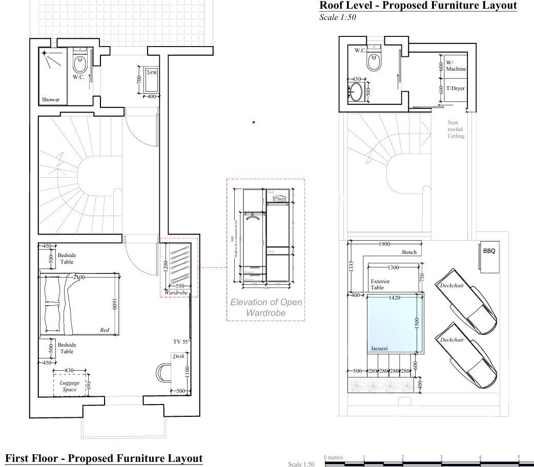
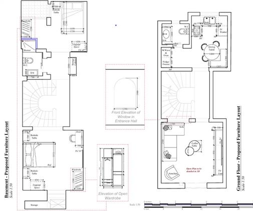
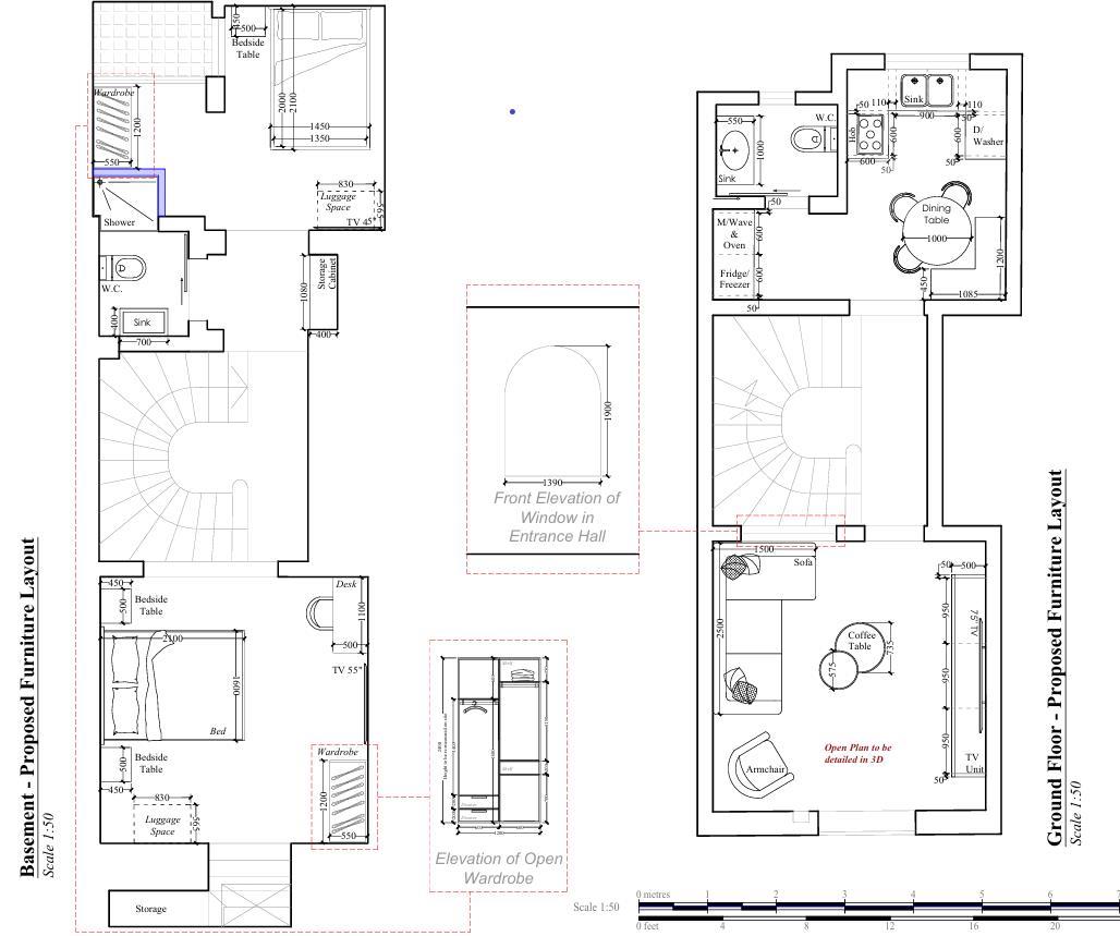
Permit in hand for 3 bedroom Town house
Free hold 375k .NEG
For Viewing Call on 79888936 ( WhatsApp) avilable .
Visit and Like our Face Book Page , Kevin Sensar .
Close to town centre & all ameniti
Permit in hand for 3 bedroom Town house
Free hold 375k .NEG
For Viewing Call on 79888936 ( WhatsApp) avilable .
Visit and Like our Face Book Page , Kevin Sensar .
Other Details
House of characterRabat (Malta)Other
2YesNo
Item Details
9984854
333
Property For Sale
03/11/2025
Featured Listings
Mellieha Brand New Apartment
For Sale
Apartment / Flat3Mellieha
Move in Ready maisonette from owners + Garage (optional)
For Sale
Maisonette3Qormi
!!WANTED!! PLOTS / SITES & HOUSES TO DEVELOP. CASH IN HAND!!
For Sale
Terraced House3Zurrieq
NO AGENTS - DIRECT FROM OWNER - FULLY FURNISHED FIRST FLOOR APARTMENT IN MOSTA FOR SALE
For Sale
Apartment / Flat3Mosta
