GZIRA | LEASE of Commercial Outlet / Office
€ 2,800 per month
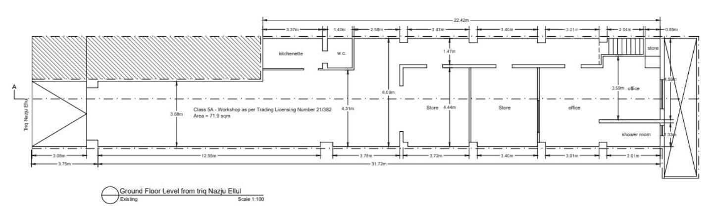
Description
GZIRA | LEASE of Commercial Outlet / Office in Central Area. One-Level Ground Floor 200 sq.m.
Enquiries: Call or message on 99495600
Enquiries: Call or message on 99495600
Other Details
Other CommercialGziraFinished
Not ApplicableNot ApplicableNot Applicable
Item Details
9953726
277
Long Lets
03/08/2025
Featured Listings
Commercial Office for rent
Long Lets
OfficesLija
M Scala Modern & Airconditioned 2 Double Bedroomed 2 Bathrooms Apartment To Let
Long Lets
Apartment / Flat2Marsascala
To Let Commercial Corner Outlet Class 4B Zabbar
Long Lets
Business Outlet or ShopZabbar
M Scala Modern & Airconditioned Penthouse To Let
Long Lets
Penthouse2Marsascala